



Cristal Riviera
Rennes
Les programmes du cinéma et de la brasserie font du secteur Féval un lieu de vie iconique et attractif dans la ZAC Eurorennes.
Le cinéma et la brasserie sont pour nous l’extension de l’espace public à l’intérieur de l’édifice. Mis en scène dans un atrium intégralement ouvert sur l’extérieur, ces circulations spectaculaires font écho aux flux urbains des voies ferrées, de la rue et des piétons.
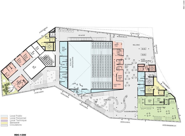
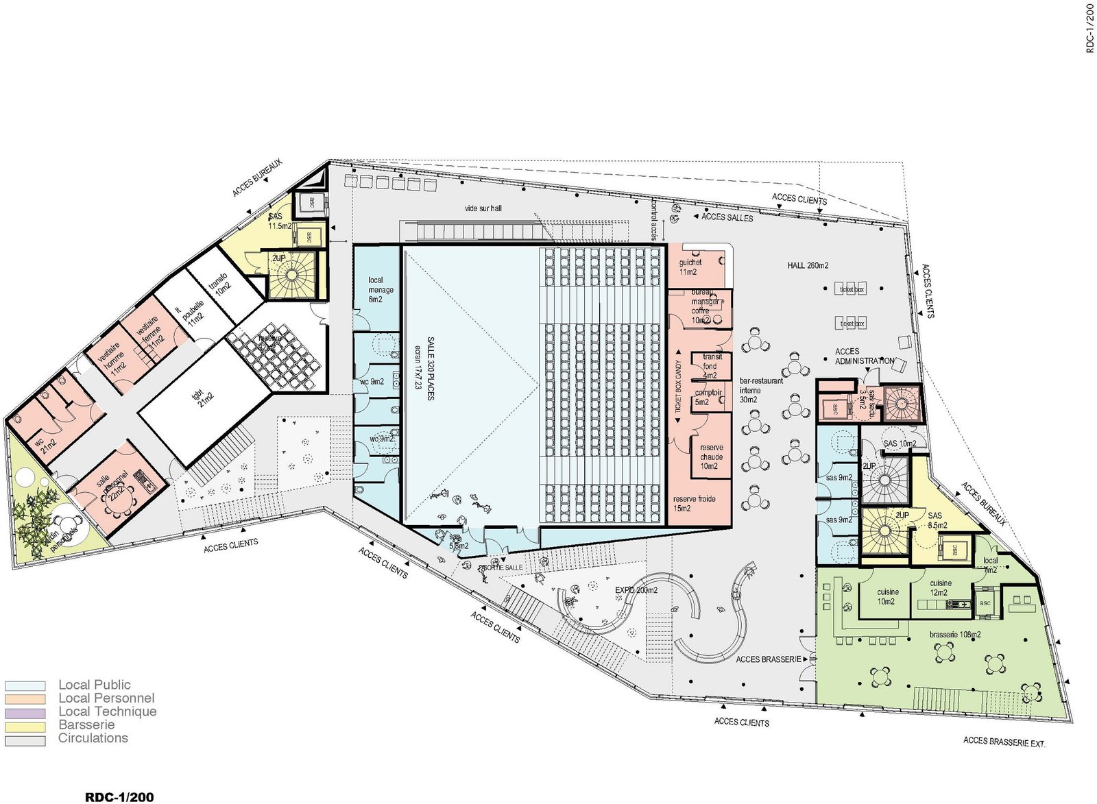
Lire la suite : Cristal RivieraAutour du noyau dur et opaque des grandes salles de cinéma, le rez-de-chaussée s’ouvre au maximum sur les espaces extérieurs en offrant accès et panoramas traversants, depuis la Corniche au Nord et la rue Paul Féval au Sud. Ce grand hall public en prolongation de la ville, abrite les espaces d’exposition, le bar et l’accueil commercial du cinéma. Le volume de la brasserie sur deux niveaux, à l’angle Sud-Est, s’ouvre lui aussi vers l’extérieur, en offrant une terrasse sur le parvis à l’Est et un accès supplémentaire vers le cinéma. Ces aménagements modulables, la proximité de la brasserie ainsi que la qualité des foyers et espaces de déambulation favorisent la tenue de manifestations uniques et de programmes évènementiels.
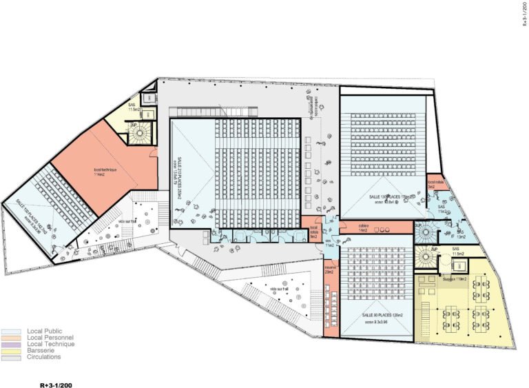
Les niveaux de bureau surplombent les activités ouvertes au public. En harmonie avec les immeubles B et E de part et d’autre du canyon en cœur d’îlot, ils occupent un volume facetté dans lequel se découpent des terrasses, gradins et mezzanines. Au lieu de plateaux ordinaires, ces espaces profitent alors d’une dimension architecturale et deviennent des espaces de travail de qualité.
Programme
Construction d’un immeuble de bureaux + cinéma
Lieu
Îlot Féval, ZAC Eurorennes
Rennes
Calendrier
Concours en 2013
Maîtrise d’ouvrage
Brémond Immobilier
Maîtrise d’œuvre
Architecte mandataire : Marin + Trottin, architectes associés : Hamonic+Masson & Associés + a/LTA
Bureaux d’études techniques
Économie : Cabinet Collin, graphiste : Luxigon
Surface
7 484 m²





















